1. Notice of the application was published in the Commission Daily Calendar on December 11, 2001. There are no unresolved matters or protests; a public hearing is not necessary.
2. ACTA requests authority to reconstruct two existing at-grade highway-railroad crossings along the ACTA By-Pass Track. The first crossing is in the County of Los Angeles and the City of Compton at the intersection of 134th Street/Pine Avenue with Alameda Street. The second crossing is in the City of Lynwood at the intersection of Martin Luther King Jr. Boulevard/Century Boulevard with Alameda Street.
3. The Alameda Corridor and related rail projects provide improved goods movement, to accommodate the Ports of Long Beach and Los Angeles growth, reduce highway congestion, reduce air pollution and noise, which will benefit adjacent residential and industrial areas.
4. Public convenience, necessity and safety require reconstruction of the railroad crossings and other related rail work, in connection with the Alameda Corridor project, as set forth in Appendix A, and as more fully described in the application.
5. ACTA is the lead agency for this project under the CEQA, as amended.
6. The Commission is a responsible agency for this project and has reviewed and considered ACTA's EIR, the EIS, and U.S. Department of Transportation Record of Decision. Mitigation measures were adopted as a condition of project approval.
Conclusions of Law
1. We find the environmental documents prepared by ACTA and the Department of Transportation adequate for our decision-making purposes.
2. We adopt the mitigation measures as described and specified herein for purposes of our approval.
3. The application should be granted as set forth in the following order.
ORDER
IT IS ORDERED that:
1. Alameda Corridor Transportation Authority (ACTA) is authorized to reconstruct two existing at-grade highway-railroad crossings along the ACTA By-Pass Track. The first crossing is in the County of Los Angeles and the City of Compton at the intersection of 134th Street/Pine Avenue with Alameda Street, identified as CPUC Crossing No. BG-492.80, and the second crossing is in the City of Lynwood at the intersection of Martin Luther King Jr. Boulevard/Century Boulevard with Alameda Street, identified as CPUC Crossing No. BG-490.90, as set forth in Appendix A, and as more fully described and indicated by text and plans attached to the application.
2. Construction and maintenance of the crossings shall be in accordance with the provisions of General Order (G.O.) 72-B.
3. Clearances shall be in accordance with G.O. 26-D. Walkways shall conform to G.O. 118.
4. Warning devices at the 134th Street/Pine Avenue Crossing No. BG-492.80 shall be four Standard No. 9 automatic gate-type signals (G. O. 75-C), two on the curbside and two on raised island medians. Additionally, ACTA will install a Standard No. 8 flashing lights signal (G.O. 75-C) for Pine Street on the westbound approach in advance of crossing Alameda Street and the railroad track (G. O. 75-C).
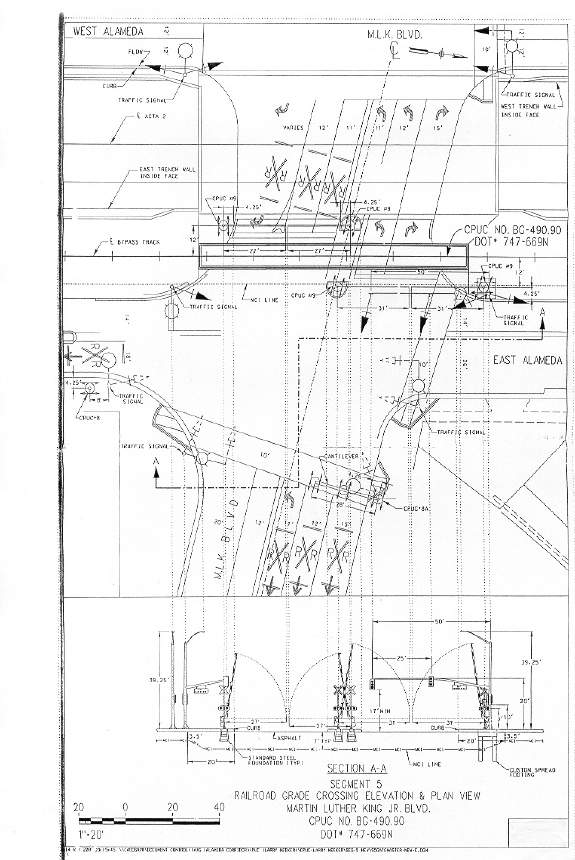
5. Warning devices at the Martin Luther King Jr. Boulevard/Century Boulevard Crossing No. BG-490.90 shall be four Standard No. 9 automatic gate-type signals (G.O. 75-C), two on the curbside and two on raised island medians. Additionally, ACTA will install a Standard No. 8-A automatic flashing light signal on cantilever arm (G.O. 75-C) in advance of the crossing on the northeast corner of the Alameda Street/Martin Luther King Jr. Boulevard traffic intersection for motorist on westbound Martin Luther King Jr. Boulevard, and install a Standard No. 8 flashing lights signal (G. O. 75-C) on the southeast corner of the Alameda Street/Martin Luther King Jr. Boulevard traffic intersection for motorist on northbound on Alameda Street turning left on to Martin Luther King Jr. Boulevard.
6. Construction and maintenance costs shall be borne in accordance with an agreement that has been entered into between the parties. A copy of the agreement shall be filed by ACTA with the Commission's Rail Crossings Engineering Section (RCES) of the Consumer Protection and Safety Division prior to construction. Should the parties fail to agree, the CPUC shall apportion the costs of construction and maintenance by further order.
7. Within 30 days after completion of the work under this order, ACTA shall notify RCES in writing, by filing a completed standard CPUC Form G (Report of Changes at Highway Grade Crossings and Separations), that the authorized work is completed.
8. This authorization shall expire if not exercised within two years unless time is extended or if the above conditions are not complied with. Authorization may be revoked or modified if public convenience, necessity, or safety so require.
9. The application is granted as set forth above.
10. Application 01-12-005 is closed.
This order is effective today.
Dated ________________, at San Francisco, California.